2
$550,000 Sale
Listed 2 hours ago
21 Murraydale CRESCENT
· 3
· 2.0
· 0
· 1835
Key Facts
Key facts for 21 Murraydale CRESCENT
Property Type
House, House
Parking
Garage: Yes, 0 parking
MLS #
SK021214
Size
1835 sqft
Basement
Not Applicable, Crawl space (Not Applicable)
Listed on
-
Lot size
-
Tax
-
Days on Market
-
Year Built
2026
Maintenance Fee
-
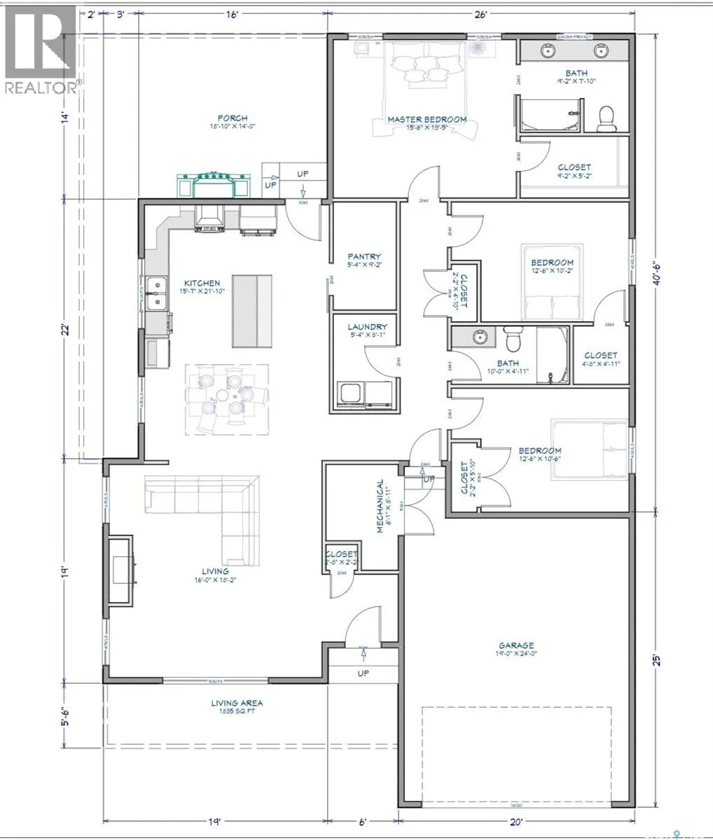
Description
New Build Bungalow - welcome to your future home! Currently under construction, this spacious 1,835 sq. ft. bungalow offers the perfect blend of comfort, style, and flexibility. With three generously sized bedrooms and two full bathrooms, this residence is designed for modern living and optimal conv...enience. Enjoy the benefits of a thoughtfully planned layout, including an above-grade mechanical room for easy access and future maintenance. The open-concept main living area is perfect for entertaining family and friends, while large windows invite natural light throughout the home. All appliances are included, making for an easy move-in experience. The builders are willing to negotiate landscaping and fencing to help you personalize your outdoor space. High-quality materials and craftsmanship from a reputable builder are evident throughout every corner of the home. Drywall installation is currently underway, giving you the opportunity to have a say in the finishing touches. The sooner you act, the more personalized your new bungalow can be! Contact us today to schedule a viewing. (id:10452)
Similar Properties (No results)
Room Types
3pc Ensuite bath
-
Dimensions 9'2" x 7'10"
71.81 sqft
4pc Bathroom
-
Dimensions 5' x 10'
50 sqft
Bedroom
-
Dimensions 12'6" x 10'2"
127.08 sqft
Listing courtesy of: Blythman Agencies Ltd.
This REALTOR.ca listing content is owned and licensed by REALTOR® members of The Canadian Real Estate Association.