19
$968,000 Sale
Listed 1 day
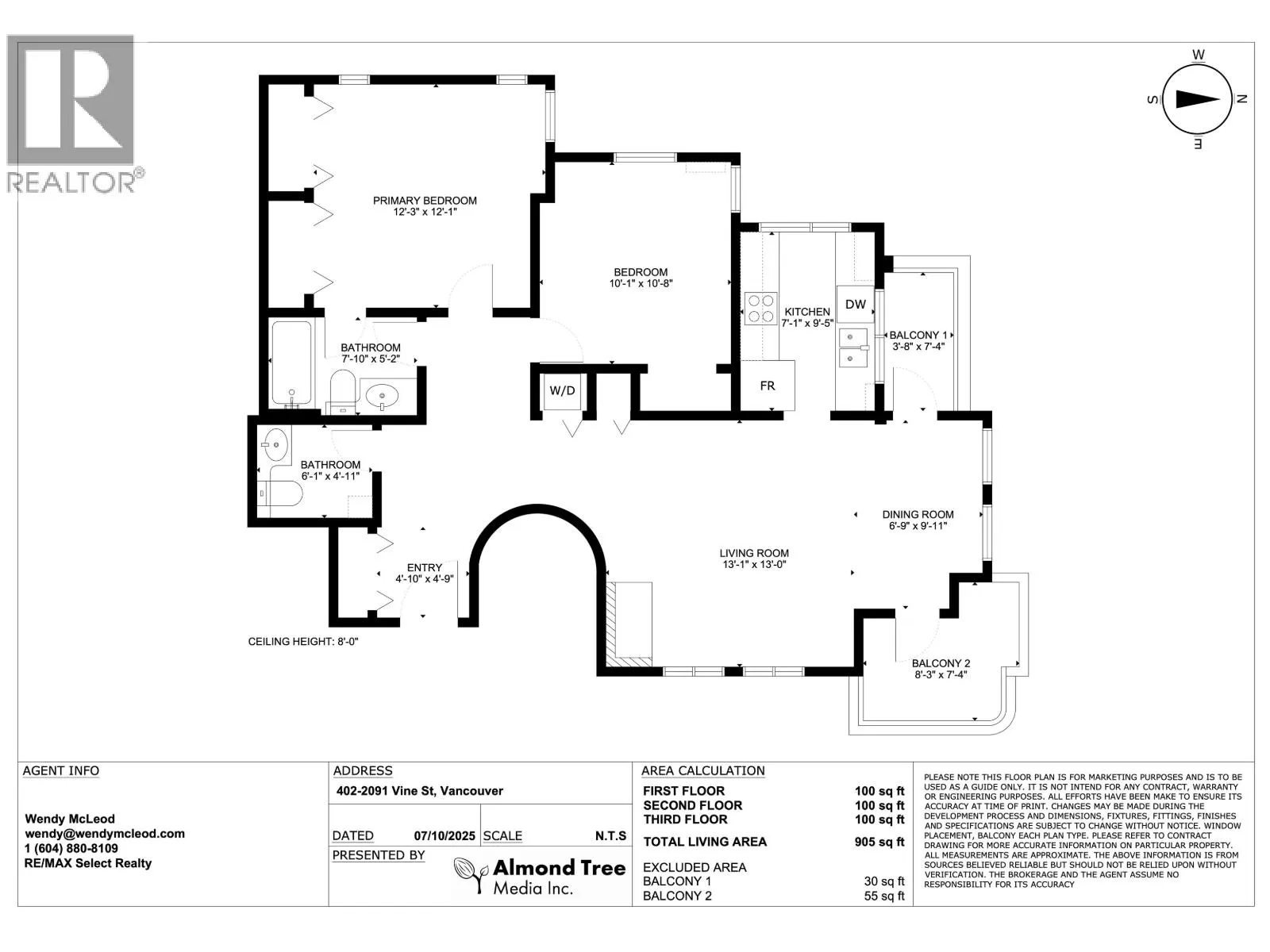
402 PH2 2091 VINE STREET
· 2
· 2.0
· 2
· 905
Key Facts
Key facts for 402 PH2 2091 VINE STREET
Property Type
Condo, Apartment
Parking
Garage: No, 2 parking
MLS #
R3056466
Size
905 sqft
Basement
-
Listed on
-
Lot size
-
Tax
-
Days on Market
-
Year Built
1990
Maintenance Fee
$881.61/mo
Description
PENTHOUSE Living in the Heart of Kits! Experience boutique penthouse living on a beautiful tree-lined street, just steps to the best of Kitsilano-cafés, restaurants, shops, grocery stores, Kits Beach, and the upcoming Broadway Subway line. This bright and spacious 2-bed, 2-bath home offers large roo...ms, oversized closets, and airy layout streaming with natural light. Enjoy North Shore mountain views from your generous living area and cozy up by the gas fireplace on cool evenings. The bright kitchen and dining area have two private balconies, perfect for morning coffee or sunset views. Situated in a rainscreened 8-unit building, offering a true sense of community. Complete with 2 parking stalls and 1 storage locker. A perfect home for upsizers or downsizers alike-penthouse living at its best (id:10452)
Similar Properties (No results)
Listing courtesy of: RE/MAX Select Realty
This REALTOR.ca listing content is owned and licensed by REALTOR® members of The Canadian Real Estate Association.